ПОДСИСТЕМА ФАСАДОВ

Профессиональные решения для вентилируемых фасадов
ТЕХНОЛОГИИ

ПОДСИСТЕМА ФАСАДОВ

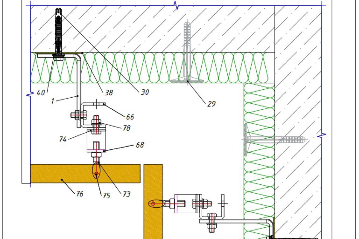
Подсистема фасадов — это несущий каркас (выполненный, как правило, из алюминия, оцинкованной или нержавеющей стали), который крепится к стене здания для монтажа облицовочных материалов, таких как керамогранит, композитные панели, фиброцементные плиты или другие, и создания вентилируемого зазора. Он включает кронштейны, направляющие профили (вертикальные и/или горизонтальные), крепежные элементы (метизы, кляммеры, заклепки) и другие комплектующие, которые формируют надежную и долговечную конструкцию для отделки фасада.

Основные компоненты подсистемы фасадов:

  • Кронштейны: Несущие элементы, которые крепятся непосредственно к стене здания и обеспечивают основную нагрузку системы.
  • Направляющие профили: Вертикальные и/или горизонтальные профили, которые образуют каркас для крепления облицовочных материалов.
  • Крепежные элементы: Метизы, кляммеры, заклепки и другие детали для надежного крепления всех компонентов системы.
  • Теплоизоляция: Слой утеплителя, который монтируется между стеной и облицовкой для улучшения энергоэффективности здания.
  • Ветрозащитная мембрана: Защищает утеплитель от воздействия ветра и влаги.
  • Вентилируемый зазор: Пространство между утеплителем и облицовкой для циркуляции воздуха и удаления влаги.

Преимущества вентилируемых фасадов:

  • Долговечность и надежность конструкции
  • Энергоэффективность и теплоизоляция
  • Защита несущих конструкций от атмосферных воздействий
  • Возможность использования различных облицовочных материалов
  • Простота монтажа и обслуживания
  • Улучшение внешнего вида здания

Области применения:

Подсистемы фасадов применяются в строительстве жилых, коммерческих и промышленных зданий, а также при реконструкции старых сооружений. Они обеспечивают надежную основу для различных видов облицовки, включая керамогранит, композитные панели, фиброцементные плиты, натуральный камень и другие современные материалы.